ГЛЦ России Бронирование жилья   Вебкамеры  Состояние трасс Поиск попутчика |  НеДома.ру
 !!! Правила ПоискПоиск ПользователиПользователи ГруппыГруппы  РегистрацияРегистрация  ПрофильПрофиль Войти и проверить личные сообщенияВойти и проверить личные сообщения ВходВход

Стальную плиту надо. Где?

 RSS-поток ветки «Стальную плиту надо. Где?»
На страницу 1, 2  След.
 
Начать новую тему   Ответить на тему    Список форумов -> Технический форум
Автор Сообщение
Steel



Зарегистрирован: 27.01.2008
Сообщения: 807
Откуда: Уфа

СообщениеДобавлено: Сб Фев 14, 2015 1:37 pm    Заголовок сообщения: Стальную плиту надо. Где? Ответить с цитатой

Нужен лист железа размером 1 на 1 метр и толщиной в районе 1 см. Нужно снять фаски, приварить к нему пару кронштейнов и все покрасить желательно в порошок. Где такое реально организовать?
Вернуться к началу
Тихоход



Зарегистрирован: 22.03.2005
Сообщения: 5229
Откуда: Уфа, Черниковка

СообщениеДобавлено: Сб Фев 14, 2015 7:23 pm    Заголовок сообщения: Ответить с цитатой

Поговаривали, что на УфаКране, что за ДОКом, режут газом листы нужной толщины. Возможно, что не по телефону, а на месте.
Но этот слух я слышал года 4 назад, а воспользоваться нужды не было.
Только не 1 см, а 10 мм)
Вес будет примерно 80 кг.
Покрасочных контор много. А так, чтобы и металлобаза и металлообработка и порошок были через одно лицо...
Вернуться к началу
Айдар_Уфа



Зарегистрирован: 16.03.2009
Сообщения: 2190
Откуда: Уфа

СообщениеДобавлено: Вс Фев 15, 2015 10:48 pm    Заголовок сообщения: Ответить с цитатой

Покажи что нужно сделать. Так не понятно. И про какие фаски идет речь?
Отрезать на ЧПУ плазме и приварить можем. Порошок в 5 минутах езды от нас. Нижегородка если что для ориентира.
Вернуться к началу
Steel



Зарегистрирован: 27.01.2008
Сообщения: 807
Откуда: Уфа

СообщениеДобавлено: Пн Фев 16, 2015 1:01 am    Заголовок сообщения: Ответить с цитатой

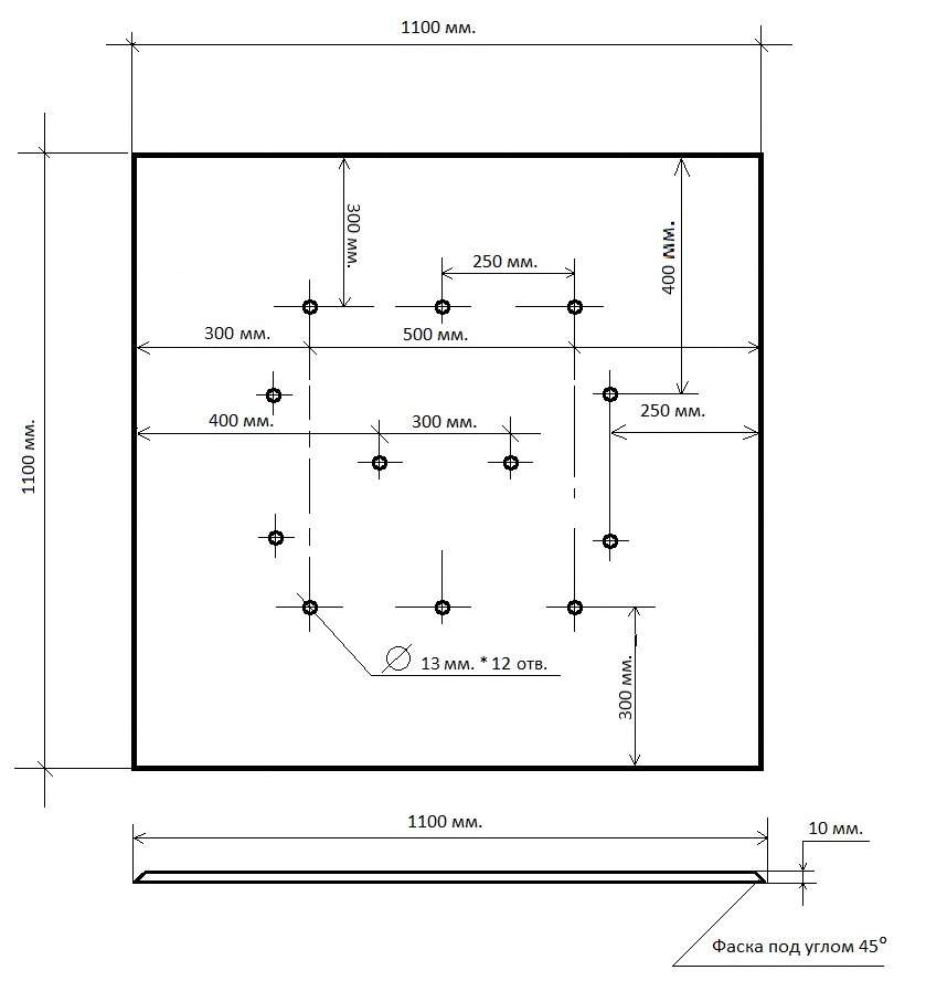
Нужно края снять под углом 45 градусов. Плита будет лежать на полу, что бы об края не запинались. Кронштейны для приварки есть. И нужно будет еще насверлить отверстия диаметром 12 мм в количестве 16 шт, по 4 вдоль каждой стороны. Как подготовлю чертежик могу Вам на почту скинуть или сюда выложить.
Вернуться к началу
Айдар_Уфа



Зарегистрирован: 16.03.2009
Сообщения: 2190
Откуда: Уфа

СообщениеДобавлено: Пн Фев 16, 2015 1:07 am    Заголовок сообщения: Ответить с цитатой

Вырезать можем - фаску снимать только болгаркой, шероховатость будет соответствующая. Такой лист в фрезер не войдет. Если это не пугает то можем сделать.
Вернуться к началу
pristernet



Зарегистрирован: 15.02.2015
Сообщения: 2
Откуда: Москва

СообщениеДобавлено: Пн Фев 16, 2015 1:13 am    Заголовок сообщения: Ответить с цитатой

А какая фирма у вас? тоже нужна такая услуга
Вернуться к началу
Айдар_Уфа



Зарегистрирован: 16.03.2009
Сообщения: 2190
Откуда: Уфа

СообщениеДобавлено: Пн Фев 16, 2015 3:06 pm    Заголовок сообщения: Ответить с цитатой

pristernet писал(а):
А какая фирма у вас? тоже нужна такая услуга

Мне канеш не жалко. Только в профиле у вас указан иной город. Смысл вам заказывать металлообработку в Уфе?
Да и за рекламу тут могу по шапке дасть. Пишите в личку. Smile
Вернуться к началу
Steel



Зарегистрирован: 27.01.2008
Сообщения: 807
Откуда: Уфа

СообщениеДобавлено: Вт Фев 17, 2015 11:50 pm    Заголовок сообщения: Ответить с цитатой

Цена вопроса сначала интересует с покраской и без.



Кронштейны для приварки привезу по факту изготовления или при внесении предоплаты, если потребуется.
Вернуться к началу
Айдар_Уфа



Зарегистрирован: 16.03.2009
Сообщения: 2190
Откуда: Уфа

СообщениеДобавлено: Ср Фев 18, 2015 12:57 am    Заголовок сообщения: Ответить с цитатой

Завтра покажу спецу - что скажет по цене.
Вернуться к началу
Steel



Зарегистрирован: 27.01.2008
Сообщения: 807
Откуда: Уфа

СообщениеДобавлено: Вс Фев 22, 2015 5:03 pm    Заголовок сообщения: Ответить с цитатой

Айдар, подправил чертежик, отверстий надо меньше.
Предварительный ответ еще не получали?

Вернуться к началу
Показать сообщения:   
Начать новую тему   Ответить на тему    Список форумов -> Технический форум Часовой пояс: GMT + 6
На страницу 1, 2  След.
Страница 1 из 2
Имя


 



rax.ru
Powered by phpBB
Rambler's Top100